info@ely-planning.co.uk
01223 872690
Home
About Us
Portfolio
Services
Resources
FAQs
Contact
Inspired Kitchens Cambridge
MENU
Home
About Us
Portfolio
Services
Resources
FAQs
Contact
Inspired Kitchens Cambridge
CLOSE
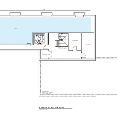
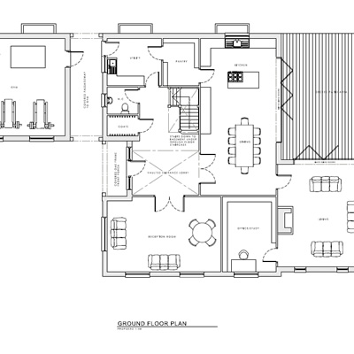
Caxton End Eltisley
BACK
BACK