info@ely-planning.co.uk
01223 872690
Home
About Us
Portfolio
Services
Resources
FAQs
Contact
Inspired Kitchens Cambridge
MENU
Home
About Us
Portfolio
Services
Resources
FAQs
Contact
Inspired Kitchens Cambridge
CLOSE
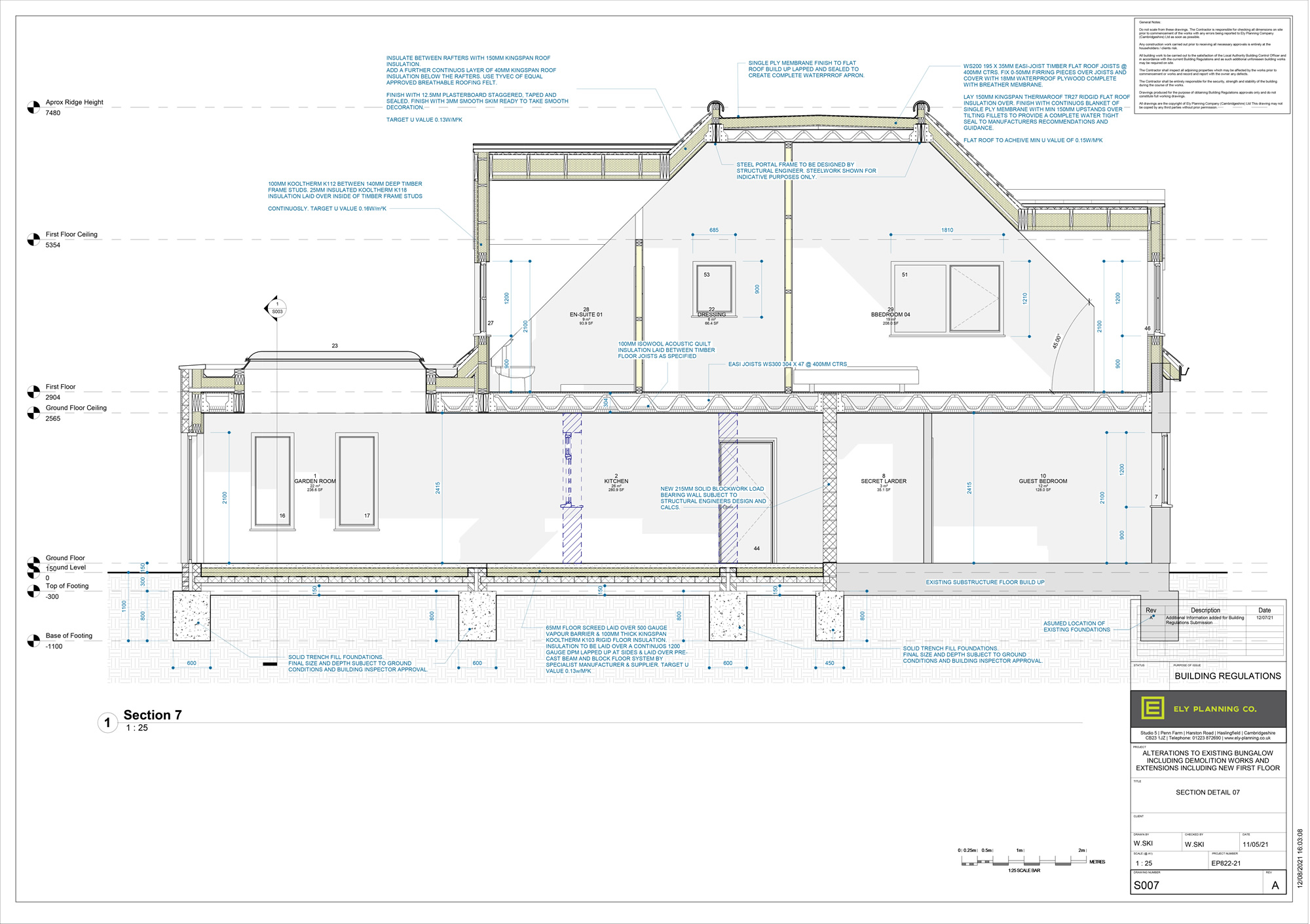
Butler Way Haslingfield
BACK
BACK